House removal experts in Queensland and Northern NSW.

Dove – SOLD

  • SOLD
Nudgee, Brisbane City, Queensland, 4014, Australia
  • Semi Modern
  • Property Type
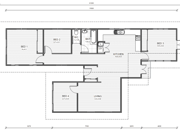
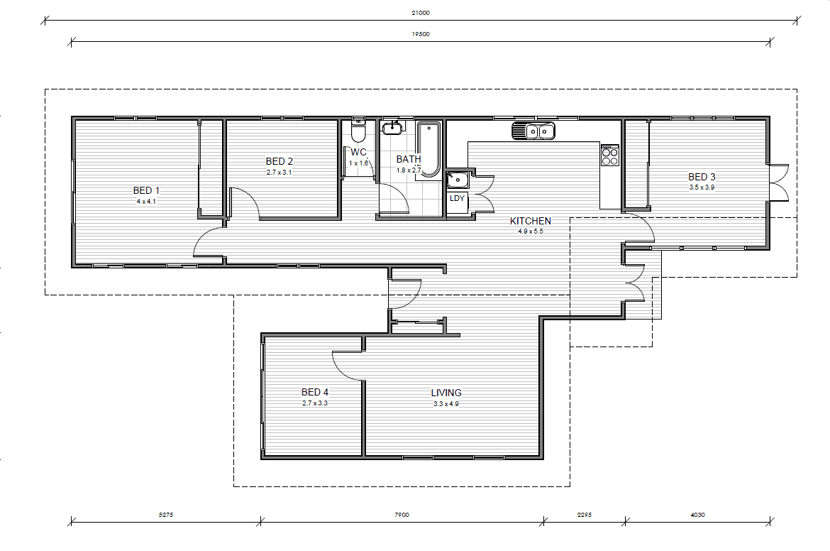
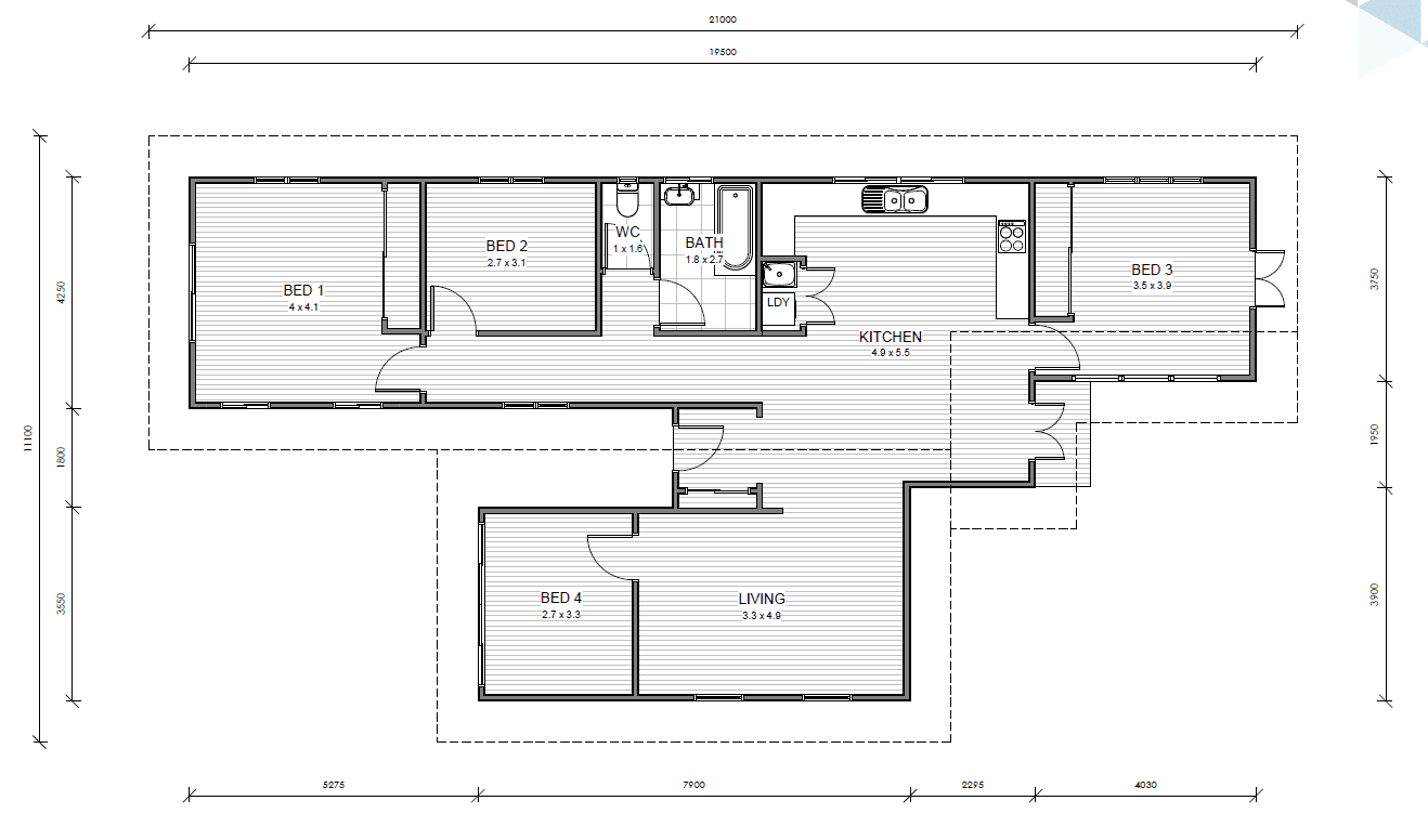
  • 4
  • Bedrooms
  • 1
  • Bathroom
SOLD

Dove – SOLD

Nudgee, Brisbane City, Queensland, 4014, Australia
  • SOLD

Details

Updated on July 3, 2024 at 1:57 pm
  • Price: SOLD
  • Bedrooms: 4
  • Bathroom: 1
  • Property Type: Semi Modern
  • Property Status: SOLD

Description

This house is SOLD!

This great modern style home is basically ready to move in

Benefits of this home for you are

  • Modern Skillion styling
  • Four Bedrooms
  • Chamferboard Exterior
  • Excellent condition inside
  • Generous size living area
  • Air Con to bedrooms
  • Good Metal roof
  • Polished Hardwood Timber floors
  • Good Condition externally
  • Aluminium windows with screens
  • Mostly Masonite lining inside
  • Can provide home asbestos free if required
  • Very nice clean and tidy home at great price

Property Documents

Dove Marketing

Floor Plans

Dove-Marketing

Description:

360° Virtual Tour

https://youtu.be/tr9GdcoeaCc

Similar Listings

Compare listings

Compare
Search
Price Range From To
Queensland House Removers
  • Queensland House Removers